
MIL-DTL-62337C(AT)
4.6.2 Examinations. Samples selected in accordance with 4.6.1 shall be examined as
specified in table II, and shall be examined for the defects listed in table IV. Examination shall
be visual, tactile, or by measurement with SIE.
4.6.3 Tests. Samples selected in accordance with 4.6.1 shall be subjected to the tests
specified in table II. The acceptance number in all cases is zero defects.
4.7 Verification methods. Acceptable verification methods included in this section are
visual inspection and measurement, sample tests, full-scale demonstration tests, simulation,
modeling, engineering evaluation, component property analysis, and similarity to previously-
approved or previously-qualified designs.
4.7.1 Verification alternatives. The manufacturer may propose alternative test methods,
techniques or equipment, including the application of statistical process control, tool control, or
cost effective sampling procedures to verify performance. See the contract for alternatives that
replace verification methods required by this specification.
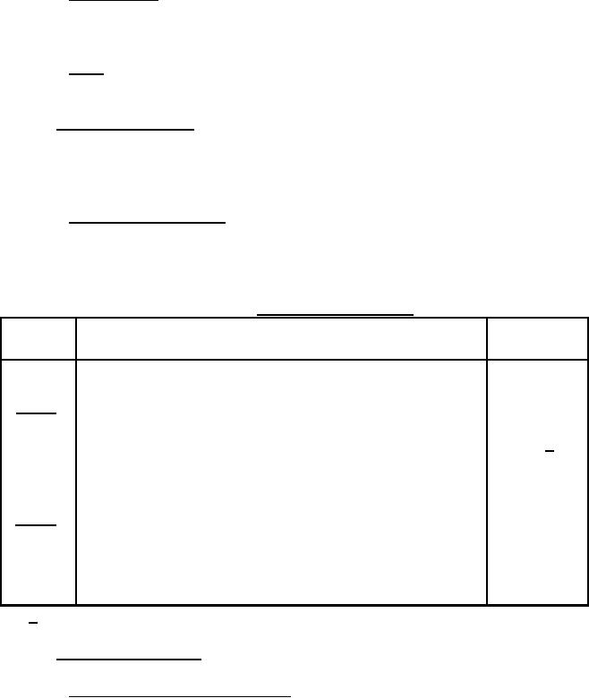
TABLE IV. Classification of defects.
Method of
Category
Defect
examination
Critical
None
Major:
101
Assembly, incomplete (see 3.3).
Visual
102
Dimensions affecting interchangeability, out of tolerance
SIE 1/
(see 3.3.1).
103
Identification marking, improper (see 3.6.1).
Visual
Minor:
201
Dimensions not affecting interchangeability, out of tolerance
SIE
(see 3.3.1).
202
Paint, improper application or color (see 3.6.2).
Visual
203
Safety not as specified (see 3.6.5).
Visual
1/ SIE = Standard Inspection Equipment.
4.8 Methods of inspection.
4.8.1 Materials, design and construction. Conformance to 3.2 through 3.3.2 shall be
determined by inspection of contractor records providing proof or certification that design,
construction, processing, and materials conform to requirements. Applicable records shall
include drawings, specifications, design data, receiving inspection records, processing and
quality control standards, vendor catalogs and certifications, industry standards, test reports, and
rating data. Examination shall be one or more of the methods outlined in 4.7.
10
For Parts Inquires call Parts Hangar, Inc (727) 493-0744
© Copyright 2015 Integrated Publishing, Inc.
A Service Disabled Veteran Owned Small Business